



















































MORE PHOTOS
MORE PHOTOS
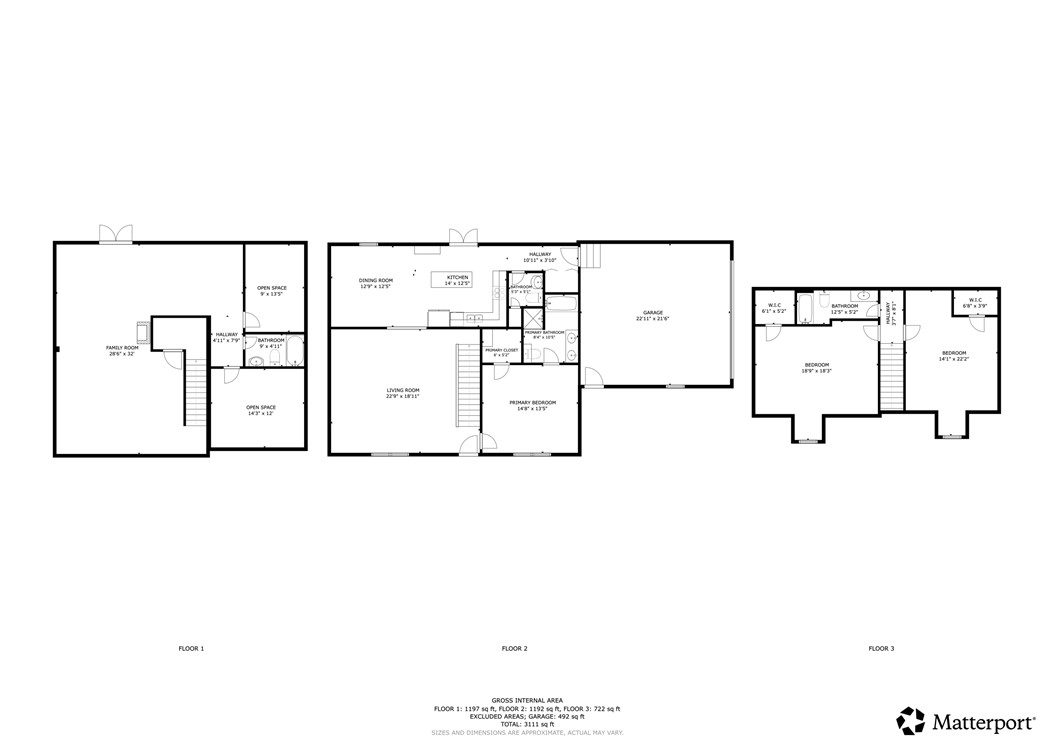
Ten minutes. That’s all it takes to leave town behind. One minute you’re in Harrison… the next, you’re turning down your drive, watching the world quiet down around you. No noise. No rush. Just 28± acres of space to breathe. Mornings start slow here—coffee on the wraparound porch, mist rising off one of four ponds, deer moving through the distance. Evenings feel the same way… quiet, steady, yours. This is the kind of place where kids grow up outside, where animals have room to roam, & where life doesn’t feel so crowded. Fully fenced & cross-fenced, it’s ready for horses, cattle, or whatever version of country life you’ve been picturing. The home gives you a solid start—3 bedrooms, a potential 4th, 3.5 bathrooms, & a full basement with space to spread out, build, or create. Ride ATVs. Watch the sunset. Build your routine around fresh air instead of traffic. You get the feeling of being completely out here-without giving up the convenience of town. If you’ve been craving space, quiet, & a reset—this is it.
Coming from Harrison toward Bergman, take Hwy 7. Turn right onto Sansing Hollow Rd. Take a left onto Mulberry Rd to the driveway on the left. Sign in yard
This listing information courtesy of Weichert, REALTORS-Market Edge.
This information is deemed to be reliable, but is not guaranteed.
Prepared by Ozark Haven Realty on April 13, 2026 at 11:26:51 AM.